It Is So (If You Think So) an adaptation of a play by Luigi Pirandello
Directed/Adapted By Sean Hargadon
Scenic Design, Master Carpenter, and Paint Charge By Brian Wasserman
Lighting Design By Finley Wedge Costume Design By Anna Rogers
Edge of the Wood Theatre
Cast
Herb Metzler - Laudisi Paige Lang - Dina Agazzi Brian A. Hill - Councilman Agazzi Bethany Weise - Amalia Agazzi
Tony DiPisa - Signor Sirelli Molly Will - Signora Sirelli Lisa Stran - Signora Cini Kelly Smith - Signora Nenni
Skyler Tipton - Signor Ponza Jeanann Power - Signora Frola Kati Yau - Signora Ponza James Wheeler - Inspector Centuri
Jennifer Cudahy - Mayor
Design Process - Build Process - Paint Process - Show Photos
Early Sketch
Early Sketch
Watercolor Rendering
Watercolor Rendering
Watercolor Rendering
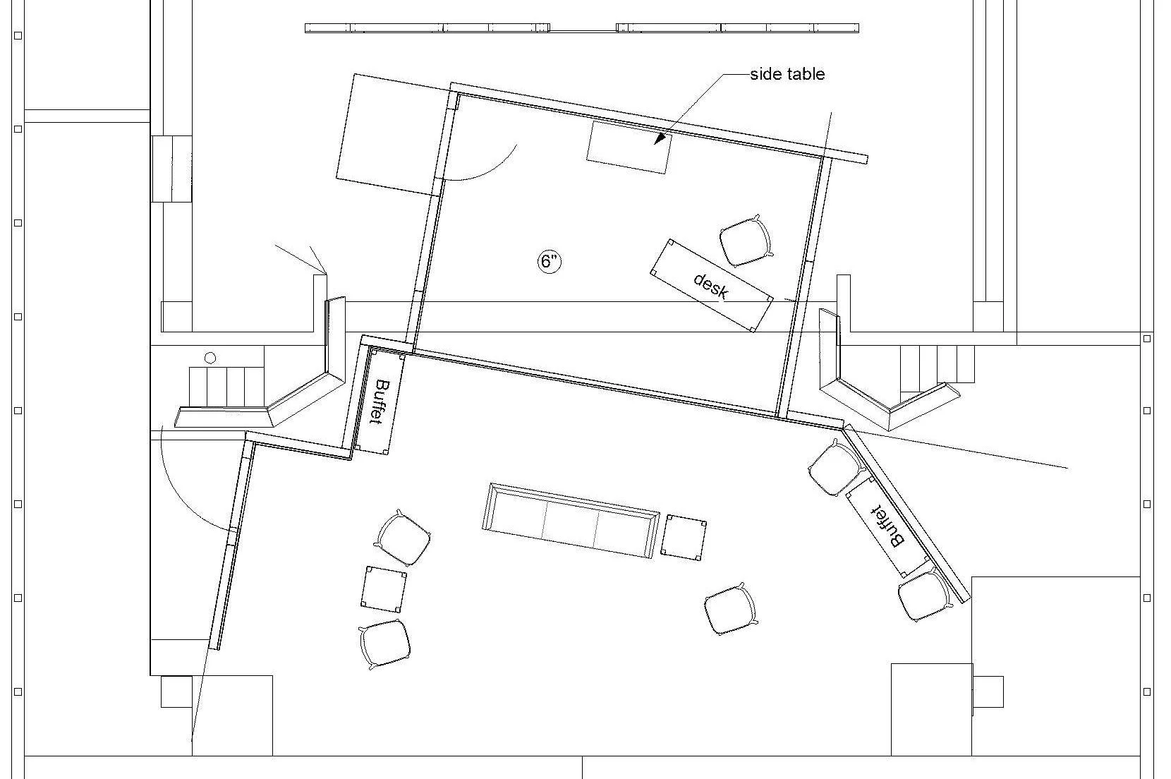
Floor Plan
Floor tile Paint Elevation
Photoshop rendering
Build Process
Building Flats
Painting Flats
Finished Design
Load in Day 1
Load In Day 2
Finished Design
Finished Design
Paint Process
Toning Wood Panels
Toning Wood Panels
Floor Layer 1
Floor Layer 2
Floor Layer 3
Floor Layer 3
Drafting the Pattern
Drafting the Pattern
Layer 4 Glazes
Floor Layer 3
Layer 4 Glazes
Layer 4 Glazes
Layer 4 Glazes
Layer 5 and 6 - Sealer and Grout
Finished Floor